Sewage treatment works (capacity 1000 m3/day)
Pollutants concentration:
-BOD 350 mg/l.
-Suspended solids 300 mg/l.
-Ammonium nitrogen up to 40 mg/l.
-Phosphate up to 15 mg/liter.

Explication:
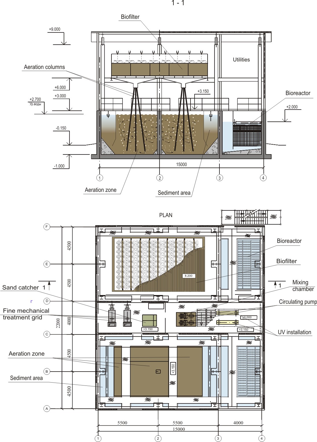
1-Block of main structures (22m x 15m).
2-Emergency sludge platforms (26mx12m).
3-Sand platforms (16mx11m).
4-Sludge Water Pumping Station (D-1,5m).
5-Mechanical sludge dewatering workshop.
6-Transformer substation.

Wastewater is fed into the sewage pumping station, from where it is sent to receiving chamber of sewage treatment facilities block and then is discharged to the PC-500 step-like fine mechanical treatment grids (with filtering bar spaces-2 mm). Delayed waste is discharged into the storage tank. Waste is removed by trucks to the dump. Having passed through the grids, wastewater is sent to the vertical sand catchers. Sand pulp is directed with the help of hydraulic elevator to sand platforms for dewatering. Dewatered sand is transported to the dump. Next sewage is sent to the combined works’ (CW) mixing chamber. CW consists of two sections. Each section includes biofilter with in-plane loading and aerotank. CW sections are combined into a single technological device with common mixing chamber, circulating pumps and industrial pipe-lines.
In the mixing chamber sewage mixes with the circulating sludge mixture from aerotank. The mixture is then fed into biofilter irrigation system with the help of circulating pump. Irrigation system consists of water-distributing trays with discharge pipes and reflective discs. Falling liquid jets break up on discs and irrigate the biofilter loading. Oxidation of 60-70% of organic contaminants takes place in biofilter. Liquid, having passed through the biofilter, is sent to aeration columns, where air entrainment takes place (0,5-0,6 m3/m3) because of vortex funnels appearing. Air-water mixture is distributed by aeration columns over the volume of the aeration basin. Floating of air bubbles as well as motion of liquid streams ensures good mixing of aeration zone. Oxidation of the remaining impurities (30-40%) takes place in aerotank. Sludge mixture displaced from the aeration zone enters the zone of sedimentation, where it is split. The treated water enters the prefabricated trays and is discharged for further processing, and sludge is grouped into flakes and returns to the aeration zone.
Biomass (biofilm and activated sludge) in combined works operates on a full oxidation (at a low rate of oxidation and loads on sludge). That ensures a developed process of nitrification in CW. Activated sludge has a high mineral content (ash content 35%) and has the lowest resistivity (33...45) x10-10 cm/g. In the lower layer of biomass (up to 10 mm), formed on the rough surface of biofilter loading, denitrifying microflora develops, resulting in reduced nitrate levels in purified water.
Under the proposed technological solutions and working experience, the contamination concentration reduction in treated sewage is taken within suspended solids and BOD up to 10 mg/liter. Further reduction of cleaning indexes up to 3 or less mg/L is provided by post-treatment facilities in aerobic bioreactors, consisting of aeration cambers and reactors with artificial loading.
In aeration chambers water is discharged from the gaseous nitrogen and saturates with oxygen, necessary for post-treatment processes and compliance with water discharged into the pond requirements. Water aeration is carried out with the help of circulating pump and aeration columns.
From the aeration chambers, water flows into reactor with artificial load. Biomass, formed on artificial load, is used for water purification from organic, nitrogen and mechanical impurities. To remove the remaining compounds of phosphorus (orthophosphate) from water a solution of aluminum sulfate can be dosed into receiving chamber of aeration columns.
Constructive load facilities contributes to development of microflora of a higher age, which makes it possible to increase the degree of purification not only within BOD and suspended solids, but also within reduction of nitrogen impurities in the residual impurities.
Next, purified water is directed into ultraviolet disinfection installations.
Sludge removal from bioreactor is carried out in CW, and then alongside with excess sludge is fed to dewatering.
Excess sludge dewatering is done at facilities with bag filters. Dewatered exceed sludge (70-80% of moisture) is transported to the dump or after the process of deworming it is used as fertilizer.
Emergency sludge platforms with good drainage system (certificate of authorship No. 729438) are foreseen. The loading in that case is 2 times higher than in traditional systems.
Technical-and-economic indexes
1. Power consumption (in technology)-21 kW.
2. Number of support staff-3 persons.
Justification of the proposed technology
1. For the construction of sewage treatment plants we propose a technology that has undergone all stages of testing and is recommended by GOSSTROY of RUSSIA.
2. Reliability of technological mode of structures. At intervals in CW functioning, rapid restoration of active microflora in the aeration basin occurs due to the long-term vitality preservation in biofilter (two days and more). In existing aeration facilities while stoppage of work for more than 3 hours active microflora restoring takes 2-3 weeks.
3. CW implementation in enclosed design as well as high index of atmospheric oxygen utilization up to 20%, due to repeated circulation of air through the biofilter and aerotank provides preservation and even increasing of treated water temperatures at 0,5-1oC, whereas in the aeration basins of extended aeration it falls in winter at 5-9oC that leads to the cessation of biochemical processes. When using CW in countries with hot climate the treatment effect increases due to preventing of treated liquid heating by direct sunlight and reduction of the amount of hot air used for purification.
4. Reliability of technological mode allows reducing the number of staff up to 3 people, whereas for buildings with pneumatic aeration the number of staff should be 5-7 people.
5. Power consumption reduction by 2 times. Power consumed by treatment facilities with pneumatic aeration system and post-treatment facilities with similar performance is 50 kWh. Power consumption of the proposed buildings is 21 kWh




